格力中央空調GMV S 商用中央空調機組
一、產品介紹
◆ 產品定義
格力GMV S 商用中央空調機組是格力自主研發的新一代變頻空調機組,機組容量為 25kW,主要用于商業場所、工業場合等,機組采用直流變頻壓縮機,并優化了制冷系統,使性能更佳、能效比更高、運行更可靠,安裝調試更方便。
◆ 產品外觀圖


注: ① 本機組設計執行標準 GB/T 18837-2015、GB 21454-2008。 ② 以上制冷量測試工況:室內干球 / 濕球溫度(27/19℃)、室外干球 / 濕球溫度(35/24℃);以上制熱量測試工況:室內干球 / 濕球溫度(20/15℃)、室外干球 / 濕球溫度(7/6℃)。 ③ 機組性能參數會因產品的改良有所改變,恕不另行通知。具體參數請以產品銘牌為準。 ④ 噪音是在半消音室的測量值,實際運轉時由于環境的改變會稍微高點。

三、產品安裝1、產品安裝注意事項 1.1 機組安裝基礎 必須是水泥或鋼制結構,應能承受機器的運行重量,并能隔音及震動,且上平面是水平的。機組的 安裝基礎應預留排水槽。 1.2 機組位置與環境 安裝處應充分考慮強風、臺風、地震的影響,加固安裝;應盡量免受火、易燃物、腐蝕性氣體或廢 氣的影響;應預留通風空間;應采取適當的措施,盡可能減小噪音和振動。 室外機組安裝地點選擇: ◆ 室外機組必須安裝在穩定而堅固的支承面上。 ◆ 室外機組和室內機組應盡可能相互靠近,盡量減少制冷管道的長度及彎角數。 ◆ 避免將室外機安置在窗下或建筑物之間,造成正常的運行噪音傳入室內。 ◆ 選擇不受陽光直射、雨淋及其他直接輻射熱源的地方,若受陽光直曬或雨淋,應安裝有效的遮陽板或防雨(雪)棚。 ◆ 進出口氣流不受阻礙。 ◆ 選擇安裝在通氣良好的地方,以便機器能吸入和排出足夠的空氣。 ◆ 不安裝在有易燃易爆物品及嚴重灰塵、鹽霧等污染性空氣的地方。 空調室外機組進出風口不可安裝引風管道。空調機組在室內制熱時,冷凝水將從室外機底架上留下, 當室外空氣的溫度低于 0℃(32 ℉)時,冷凝水會結冰。室外機組設置防雨棚時應注意不得影響機組散熱。 1.3 機組管路連接 為避免在連接管上冷凝結露,管必須用保溫材料和膠帶包扎與空氣隔絕。懸空的連接管路應做好支 撐,支撐之間距離不超過 1m。 1.4 電氣安裝 ◆ 所有電氣安裝必須由專業人士按國家和當地法律、規章進行。 ◆ 機組必須可靠接地,符合 GB 50169-2016 相關要求。 ◆ 現場接線時請以機身所貼線路圖為準。
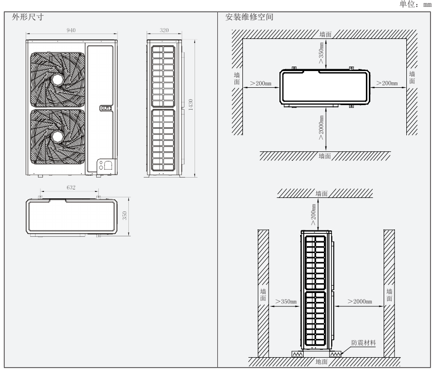
2、產品外形尺寸及安裝維修空間

以上是武漢格力中央空調提供的格力GMV S 商用中央空調機組技術參數

咨詢熱線: